Nachverdichtung einer studentischen Wohnanlage
2024
Auslober: Studierendenwerk Aachen
Mitarbeit: Karla Laukeningkat, Sarah Shah, Lucia Schachtner, Lea Schön
Landschaftsarchitektur: Alina Tolle, bogevischs buero
Bestandssituation
Das Grundstück mitten in der Aachener Innenstadt bildet eine städtebauliche Sondersituation. Zwei Bestandsgebäude an sich gegenüber liegenden Seiten eines Blockrandes, die im Inneren durch einen grünen, fast schon verwunschenen Garten miteinander verbunden sind. Ziel unseres Entwurfs ist es, an diesem besonderen Ort neuen Wohnraum für Studierende zu schaffen, der von dieser guten Lage und dem Freiraum profitiert. Hierbei steht stehts der größtmögliche Erhalt sowohl der baulichen Struktur als auch der Landschaft im Vordergrund.
Städtebau
Das erst als Industrie- und dann als Hörsaal- und Lernhaus genutzte Bestandsgebäude an der Rochusstraße basiert auf einer klaren und robusten Struktur, die sich gut für eine Umnutzung eignet. Zum Erhalt der Grauen Energie schlagen wir vor, das vorhandene Betonskelett zu erhalten Das bestehende Satteldach wird durch ein Mansarddach ersetzt, wodurch zusätzlicher Wohnraum im Dachgeschoss gewonnen wird, ohne die Traufe auf der Straßenseite zu erhöhen. Im Erdgeschoss wird die Gebäudetiefe im Bereich östlich des Anbaus auf die der Obergeschosse angepasst. Die im Bestand Richtung Süden geschlossene Fassade wird geöffnet und eine Anbindung an den gemeinsamen Garten geschaffen.
Das Bestandswohnheim am Seilgraben wird durch einen Neubau im rückwärtigen Bereich erweitert. Dieser schließt über den vorhandenen Anbau direkt an den Bestandsbau an. Der L-förmige Baukörper bildet mit dem Bestand eine Hof-in-Hof Situation und wirkt somit eher wie ein Teil des Blockrandes, im Unterschied zu der niedrigen und kleinteiligen Hofbebauung. Zudem hält er den nötigen Abstand zu den bestehenden Garagen und Freianlagen und ermöglicht deren Erhalt. Die Haupterschließung erfolgt weiterhin über das Bestandswohnheim am Seilgraben. Der zweite Eingang befindet sich im hinteren Hof.
Freiraum
Die Neubauten fügen sich rücksichtsvoll in die bestehende Topografie ein, ohne die wertvolle Freiraumstruktur zu verändern. Diese Struktur mitsamt seinen Mauern, Baumbestand, dem historischen Baudenkmal und Höhenverläufen kann größtenteils erhalten bleiben und schafft eine einladende Atmosphäre mit Lichtungen, welchen unterschiedliche gemeinschaftliche Funktionen zugeordnet werden:
Die Zugänge vom Seilgraben bleiben bestehen, der Vorhof des rückwärtigen Neubaus wird zum Treffpunkt für alle, da hier tägliche Funktionen wie Müllstandort und Fahrradabstellraum befinden. Die jeweiligen Gemeinschaftsräume werden durch Terrassen in den Außenraum vergrößert. Die Bestandsgarage bleibt erhalten, auf deren Dach entsteht eine Picknickterrasse mit Grill- und Lagerfeuermöglichkeit.
Die bereits in Vergangenheit für Volleyball genutzte Rasenlichtung wird zur Sportlichtung ausgestaltet. Sie öffnet sich nach Osten und verbindet sich mit der obersten Ebene des historischen Gartens. Dieser bleibt unberührt und wird als Ruhewiese zum Lesen und Lernen genutzt. Als neuer Blickfang befindet sich am Nord-Ende des historischen Gartens eine Lese-Pergola, die auf der historischen Rückwand ruht. Die heutige Zuwegung von Süden bleibt erhalten.
Die bestehenden Wege durch das Grundstück von Süd nach Nord bleiben bestehen und werden teilweise ergänzt, um die Nutzungsbereiche und die Gebäude zu verbinden und einen großen Gemeinschaftshof zu schaffen. Die Belagsflächen werden erneuert, auf das Minimum reduziert und mit offenen Fugen oder wassergebundenen Wegedecken wasserdurchlässig gestaltet. Den Übergang zwischen Neubau am Seilgraben und historischem Garten bildet eine naturnah gestaltete Tiefbeet-Rigole, welche das Regenwasser des Neubaus auffängt. Dieses Tiefbeet wird von kleinen Stegen überquert, die zugleich als Unterhaltungstreffpunkt oder für ein Sonnenbad genutzt werden. Starkregenereignisse können durch leichte topografische Muldenausbildungen in den Rasenflächen zurückgehalten werden.
Entfallende Bäume werden mehrfach ersetzt, sodass sich der Baumbestand weiterentwickelt wird.
Durch den Erhalt des Großteils der Freiraumstrukturen, die Verwendung und Wiederverwendung von nachhaltigen, leicht zu verarbeitenden Materialien, die Flexible Nutzung von Flächen und die Auswahl regionaler und pflegeleichter Pflanzen kann das Prinzip „Einfach Bauen“ auch in den Freiflächen Anwendung finden.Diese Vision eines lebendigen, historischen und zugleich modernen Areals wird nicht nur den Studierenden zugutekommen, sondern auch die Schönheit und den Charakter des Ortes bewahren.
Nutzungskonzept
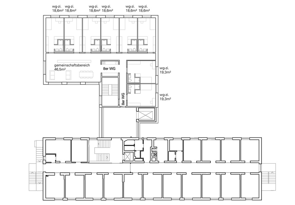
Die Tragstruktur des Bestandsgebäudes an der Rochusstraße ermöglicht eine gute und effiziente Raumaufteilung. Die Eingänge und Treppenhäuser bleiben in ihrer jetzigen Form erhalten. An den großzügigen Haupteingang sind Fahrradräume und ein großer Gemeinschaftsraum Richtung Süden mit Verbindung zum Garten angegliedert. Über einen Mittelgang ist der Haupteingang mit dem zweiten Treppenhaus verbunden. Hier sind erdgeschossig 19 Einzelapartments angeordnet, die durch die hohe Raumhöhe mit einer zweiten Ebene mit Schlafbereich ausgestattet werden können. Bei den Zimmern mit Orientierung zur Rochusstraße wird der Wohnbereich um 50cm erhöht, um mehr Privatsphäre zu generieren. In den oberen Geschossen werden über die beiden Treppenhäuser jeweils eine 8er-Wohngemeinschaft und weitere Einzelapartments erschlossen. Diese haben neben einer großen Gemeinschaftsküche mit Essplatz einen flexiblen (Plus-)Raum, der zum Wohnen oder Lernen genutzt werden kann, aber auch bei Bedarf zu einem zusätzlichen Zimmer ausgebaut werden kann. Im westlichen Teil gibt es zudem ein Doppelapartment mit einer kleinen Gemeinschaftsküche. Zwischen den Wohngemeinschaften gibt es Verbindungstüren, über die im Brandfall der zweite Rettungsweg erreicht werden kann, falls eine Abholung durch die Feuerwehr nicht möglich ist.
Auch der Neubau am Seilgraben basiert auf einer klaren einfachen Grundstruktur. Im Erdgeschoss des Wohnheims sind ausschließlich gemeinschaftliche Funktionen untergebracht. Barrierefrei gut erreichbar am hinteren Erschließungshof ist ein Fahrradraum angeordnet. Der große Gemeinschaftsraum ist nach Osten in Richtung des Freibereichs orientiert. In den vier Obergeschossen befindet sich jeweils eine 8er – Wohngemeinschaft mit großzügigem Gemeinschaftsbereich. Die Erschließungsflächen werden minimiert. Ein neues Treppenhaus bildet den zweiten Rettungsweg, wodurch eine Einfahrt der Feuerwehr in den rückwärtigen Bereich nicht erforderlich ist. Die barrierefreie Erschließung kann über das Treppenhaus des Bestandswohnheims erfolgen.
Der Fokus bei der Raumaufteilung liegt, wie im Freiraum, auf der Bildung von attraktiven Gemeinschaftsflächen, sowohl bei den Wohngemeinschaften als auch bei den großen Gemeinschaftsräumen für alle.
