Gemeinwohlorientiertes Wohn-und Lebensprojekt "Maribu", Tübingen
2025
3. Preis
Auslober: Genossenschaft Neustart: solidarisch leben + wohnen eG
Mitarbeit: Lea Schön, Johannes Prünte, Lina Sandjohann
Landschaftsarchitektur: bogevischs buero architektur&stadtplanung gmbh, Alina Tolle
Konzept – drei Gebäude, eine Gemeinschaft
Drei, sehr unterschiedliche Gebäude, bilden eine klare und kraftvolle städtebauliche Figur. Sie reagieren
jeweils auf die sehr unterschiedlichen konstruktiven, brandschutztechnischen und typologischen
Anforderungen und erhalten eine differenzierte Gestaltung. Gemeinsam ist Ihnen der Fokus auf die
Gemeinschaftlichkeit.
Jedes der drei Häuser erhält eine gemeinschaftsfördernde Erschließungsstruktur sowie lebendige,
nachbarschaftsstärkende Erdgeschosse.
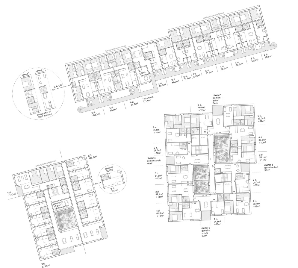
Drei Typologien
Haus Justus: Der lange Riegel im Norden wird über ein einen Laubengang im Süden erschlossen. Neben
den Zugängen zu den Wohnungen sind die privaten Freiräume. Die Wohnräume orientieren nach Süden
hin. Am Haupttreppenhaus liegt jeweils ein zentraler ‚Jokerraum‘. So wird der Laubengang nicht nur
Erschließungsraum, sondern ein lebendiger Begegnungsraum für die Bewohnenden.
In dem klar strukturierten Gebäude sind 2 bis 5/6 Zimmer-Wohnungen untergebracht. Außerdem gibt es im
östlichen Teil im 5. und 6. Obergeschoss Maisonetten und im Erdgeschoss auch WG-taugliche 3 Zimmer-
Wohnungen. Die Grundrisse sind so konzipiert, dass einzelne Zimmer flexibel Wohnungen zugeschaltet
werden können.
Haus Bob: Das östliche Gebäude bietet besondere gemeinschaftliche Wohnformen. Es werden jeweils 3
Wohneinheiten zu einem Cluster zusammengeschlossen. Diese teilen sich einen gemeinschaftlichen
Wohnbereich mit Küche, über den die einzelnen Wohneinheiten erschlossen werden. Der
Gemeinschaftsbereich wird flächenmäßig anteilig zu den dafür etwas kleineren Wohneinheiten
dazugerechnet. Die Cluster teilen sich jeweils einen großen Abstellraum. Die Flächenobergrenzen werden
in allen Wohnungen eingehalten. Die vertikale Erschließung erfolgt über zwei unabhängige Treppenhäuser,
die über einen notwendigen Flur verbunden sind. Zwei Innenhöfe sorgen für eine ausreichende Belichtung
und Belüftung. Die Innenhöfe sind breiter und tiefer als 5m und können in alle Richtungen mit öffenbaren
Fenstern versehen werden.
Haus Petra: Das östliche Haus ist so konzipiert, dass es eine größtmögliche Flexibilität und Effizienz
ermöglicht. Um einen Innenhof, über ein zentrales Treppenhaus erschlossen, sind eine große 6/7. Zimmer-
Wohnung und elf XS-Wohnungen angeordnet. Die kleinen Einzelapartments können zu großen XL-
Wohnungen zusammengeschaltet und bei Bedarf auch als ein großes Pflegeapartment genutzt werden.
Dabei werden die Studios zu barrierefreien und die 2 Zimmer-Wohnungen zu rollstuhlgerechten Zimmern.
Zentral am Treppenhaus angeordnet befindet sich ein Gemeinschaftsraum.
gemeinschaft
Um die Gemeinschaft innerhalb des Quartiers und den Bezug nach außen zu stärken, werden die
Erdgeschosse durch viele verschiedene Nutzungen belebt. Die Raumstruktur ist offen gestaltet, um
flexibel auf Nutzungsänderungen reagieren zu können und Synergien herzustellen. Im Haus Justus
befindet sich das neue Nachbarschaftszentrum, die Arztpraxis und das Stadtteilgesundheitszentrum. Die
Behandlungs- und Beratungsräume werden diskret nach Norden in einem leichten Hochparterre
angeordnet. In Haus Bob befindet sich der Multisaal und die Cafeteria. Ein Teil der Cafeteria kann bei
größeren Veranstaltungen als Foyer für den Multisaal mitgenutzt werden. Auch sanitäre Anlagen und
Lagerräume werden geteilt. In Haus Petra befinden sich im Erdgeschoss und teilweise im Untergeschoss
vor allem die genossenschaftsinternen Gemeinschaftsflächen, wie die Werkstatt und die Allerleihstation.
Hier können geteilte Dinge wie Werkzeuge oder Möbel gelagert und verliehen werden oder zum
gemeinsamen Werkeln benutzt werden. Im Untergeschoss gibt weitere geteilte Lagerflächen für die
Genossenschaft. Die Nutzung der verschiedenen Gemeinschaftsflächen wird über die Neustart Rezeption
koordiniert, die sich an der nördlichen Ecke des Gebäudes befindet. Außerdem gibt es an der südlichen
Ecke eine Eisdiele.
Die Gemeinschaftsflächen beschränken sich nicht nur auf das Erdgeschoss: In allen drei Häusern sind
sogenannte ‚Jokerräume‘ mit einer Fläche von etwa 20 m² über sämtliche Geschosse, gut auffindbar,
verteilt. Diese flexibel nutzbaren Räume können beispielsweise als Waschsalon, Gästezimmer, Homeoffice
oder Flexraum dienen. Die konkrete Nutzung wird nicht vorgegeben, sondern kann von den zukünftigen
Bewohner*innen gemeinschaftlich entwickelt und individuell an ihre Bedürfnisse angepasst werden.
